درخواست های طراحی ویلا اردیبهشت
- سبک مدرن
- دوطبقه مثبت
- یک طبقه منفی
- طراحی محوطه و استخر

محدودیت های طراحی ویلا اردیبهشت
- محدوده احداث ساختمان
- جانمایی استخر
- محدودیت ارتفاع
- سطح اشغال
- ارتباط عمودی به بام و زیرزمین
- ورودی سواره و پیاده

ویلا اردیبهشت: دیاگرام طراحی
روند طراحی
- پیوستگی بین طبقات با ایجاد یک پوسته صلب
- زوایای نرم
- ایجاد تراس
- شفافیت
- ایجاد فضای سبز در تراس
- استفاده از پیوستگی پوسته و حجم برای ارتباطات عمودی برای دسترسی بین طبقات، زیرزمین و بام
- حذف خرپشته برای حفظ نظم بصری حجم


روند طراحی محوطه
- کف سازی متناسب با شیب طبیعی زمین
- ایجاد فضای سبز جهت ایجاد حریم زمین
- جانمایی استخر به صورت پیوسته با حجم
- ایجاد دسترسی سواره و پیاده متناسب با شیب طبیعی زمین

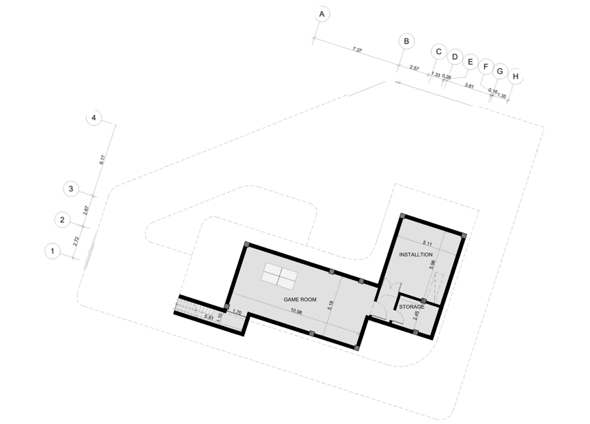
ویلا اردیبهشت: نقشه های معماری
نقشه طبقه زیر زمین
- مساحت کل: 119

طبقه همکف اندازه گذاری
- مساحت کل: 206

طبقه همکف اندازه گذاری
- مساحت کل: 206

طبقه اول اندازه گذاری
- مساحت کل: 195

طبقه همکف پلان مبلمان

پلان روف گاردن

برش عمودی طبقات


بزرگنمایی ورودی بنا

بزرگنمایی پله روف گاردن

بزرگنمایی پله داخلی وید تاسیسات وید ورودی

جدول مساحت مفید

Materials Type of Project
















